Pilot House

Ottawa, Ontario, Jun. 2021

"This project reminds me that all it takes is the courage to start" - Christopher Breedy

The Pilot House, was Christophers first architectural design. First sketched in 2021 this home blends mid-century modern style with contemporary elements. Although this was his first design, many revisions were done over the years with each version reflecting new skills learned along the way.

“The home is defined by its flat roof, low profile and strong mid-century modern look.”
- Christopher Breedy

The facade combines white brick with dark wood siding. The flat roof is paired with clerestory windows that bring in natural light while keeping privacy. A dark metal and glass front door stands out as the main feature.

The back of the house connects the indoor and outdoor living. Sliding glass doors open onto a patio with an outdoor kitchen, dining table, and seating area.

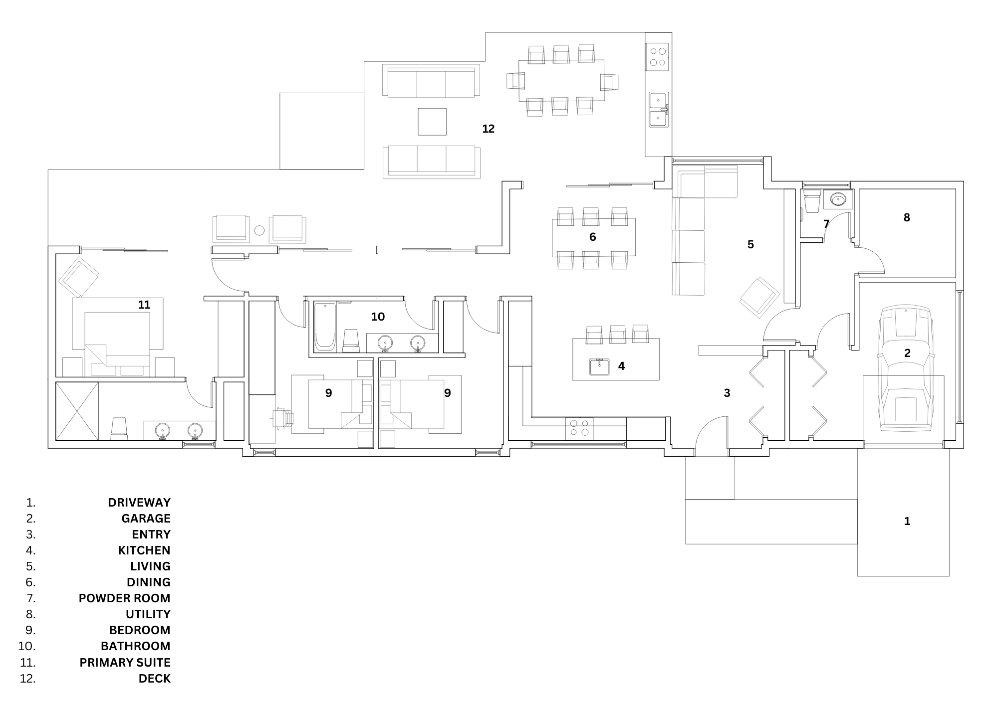
Inside, the home follows an open layout that’s bright and spacious.

The main living space is centered around a large L-shaped sofa. A TV is mounted above a dark slatted fireplace. Tall windows look out onto the backyard, bringing greenery into the space and making the outdoors feel like part of the room.

The kitchen has a clean, modern look with dark upper cabinets and warm wood lower cabinets. A long horizontal window above the counter acts as a natural backsplash and gives a view outside while cooking.

The dining area sits beside a large sliding door that opens to the backyard. Clerestory and full-height windows flood the open space with natural light, casting shifting patterns throughout the day.

Designed to be fun and lively, this room uses bright green tones. It includes a study desk, wood paneling on the lower walls, stuffed animals and fun artwork.

Each of the three bedrooms has its own character, shown through color and materials. This room uses a strong burnt-orange color throughout. A curved slatted headboard wall adds depth, while simple hanging lights on each side of the bed create a warm and balanced feel.

The primary bedroom is calm and relaxing, using beige tones and light wood finishes.

The Pilot House reflects growth. It was the first project created using AutoCAD, SketchUp, and Twinmotion. The project that started Breedys journey into architecture. The final result blends the spirit of 1950s modern design with a clean, modern feel suited to today’s lifestyle.

Previous
Previous

Vinewood House

Next
Next

Las Palmas Residence