Harding House

Joshua Tree, California, Feb 2022

“The house was designed as a response to the desert landscape and the requirements from my client.” - Christopher Breedy

In the stillness of the desert, the Harding House establishes a dialogue between architecture and terrain, one defined by material restraint, layout, and separation. This project was set to be located just outside the Joshua Tree National Park on the an empty plot overlooking the unique landscape.

“The plan came from observing the landscape itself. the split volumes create a clear separation between public and private areas.” - Christopher Breedy

Perched on a desert bluff, the Harding House sits precisely where the terrain drops off on all sides, framing sweeping views that are woven into everyday life inside the home.

The approach emphasized restraint, designing the house as a continuation of the landscape shaped by its terrain.

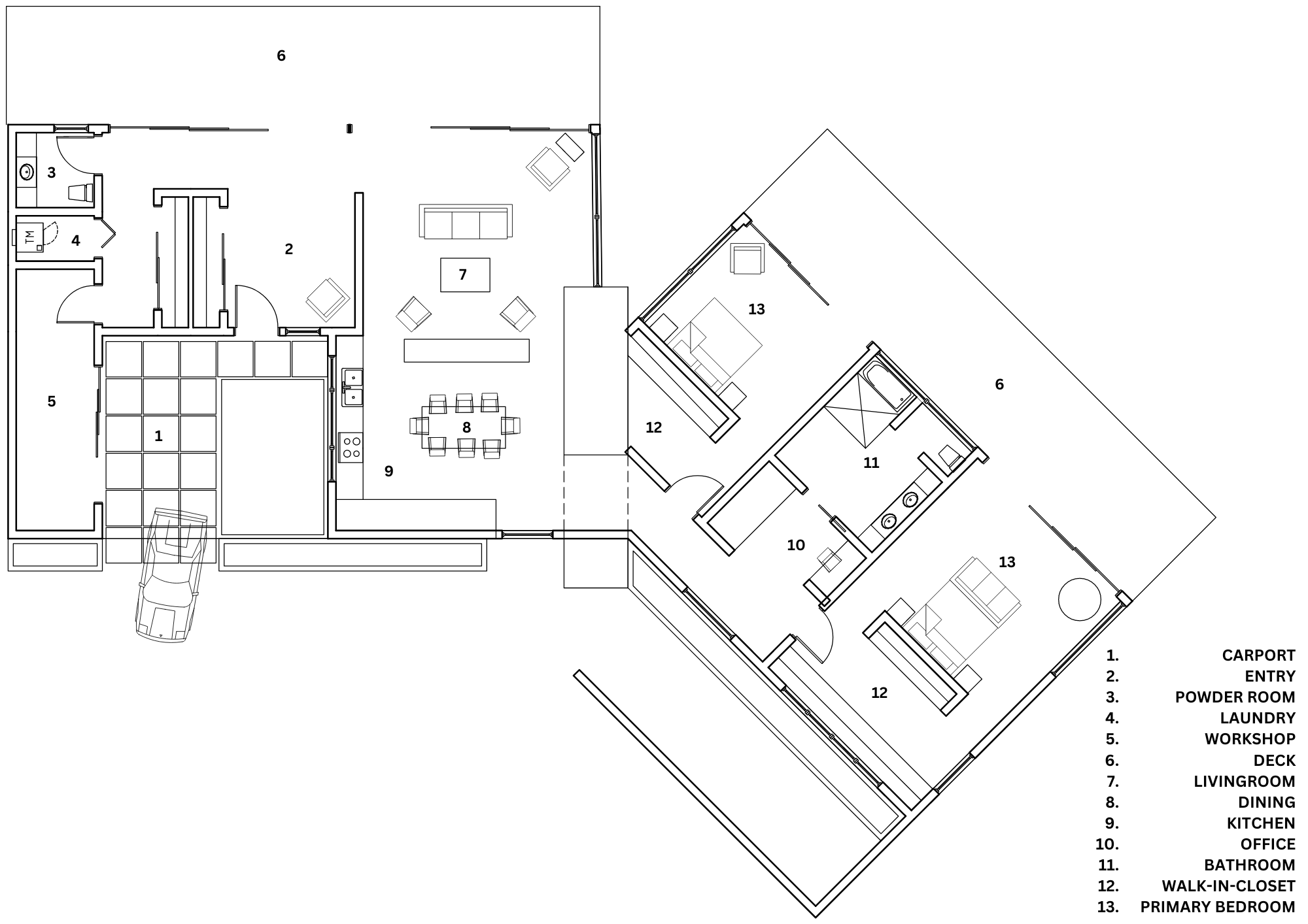
The designs most striking feature is its fractured layout. Inspired by a distant boulder split in two, the residence is divided into two volumes that separates public and private life.

One wing accommodates the living, dining, and kitchen while the other forms the bedrooms. The divide between them is both spaces allows the home to support social gathering without compromising privacy.

From afar, the house presents a low profile against the jagged horizon. This allows the house to recede visually within the desert.

Internally, floor-to-ceiling windows transforms each space into a composed frame, directing attention outward towards the landscape.

Circulation through the house, particularly along the narrow corridor connecting the two volumes, reinforces a experience of compression and release.

In the main living area, the double sided fireplace anchors the space for both spaces.

A suspended patio projects outward over the boulders below, allowing the views to be unobstructed.

The Harding house experience is defined by a dialogue between architecture and landscape, with the house feeling grounded in and shaped by the rocky shoreline. The project takes its cues from the surrounding landscape, shaping a quiet home that responds carefully to the site.

Previous
Previous

Clery House

Next
Next

Croft Cabin