Clery House

Malibu, California, Jan. 2025

“The inspiration came from browsing Google street view when I stumbled across an interesting home and wanted to learn more about its history.” - Christopher Breedy

In Santa Monica, California, located at 475 Mesa Road lies the inspiration of the Clery House. This 850-square-foot home is widely regarded as the birthplace of the Case Study House Program, which Entenza launched in 1945. Drawing back to the Attenza Residence by Harwell H. Harris, the Clery House is a reinterpretation of California modernism.

“The home is defined by its circular design and function.” - Christopher Breedy

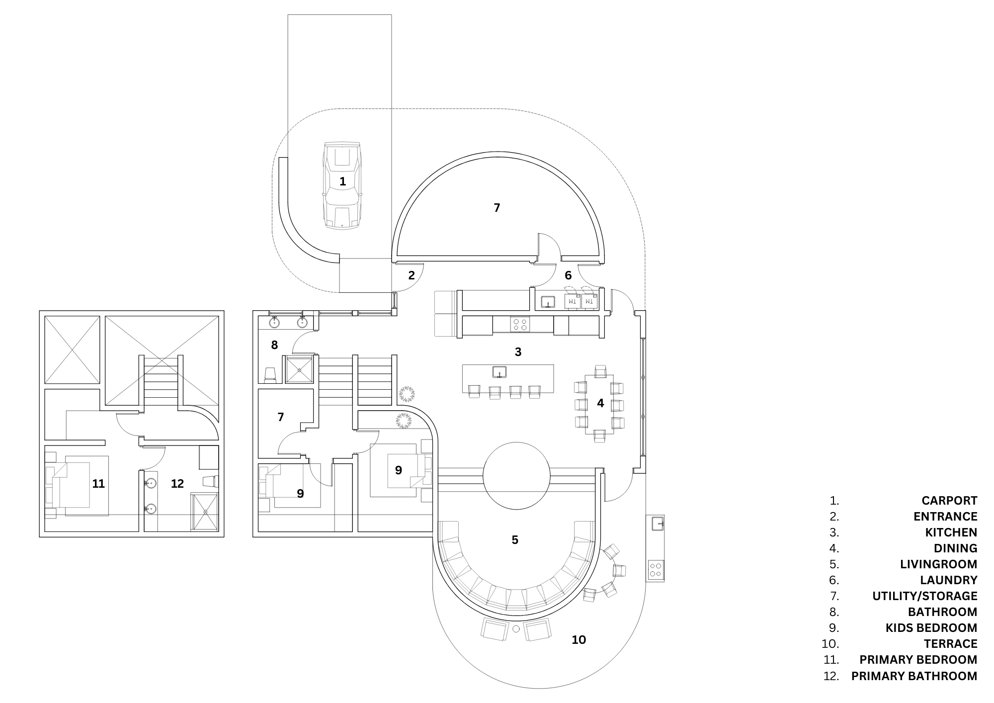
From the street, the home presents a great sense of privacy. A horizontal roofline extends protecting the entrance and the carport.

This house experiments with geometry, especially with circular forms. Curves can be found throughout this project maximizing both privacy and view from the rear.

The balcony extends outward like a ship’s deck, reinforcing the connection to its waterfront.

The split-level configuration allows for the separation of the private zones.

The lower split consists of two bedrooms and a laundry room. One bedroom was designed for guests and the other designed for kids.

On the upper split, the primary bedroom and ensuite are isolated creating a quiet retreat against the backdrop of ocean and palm trees.

A custom olive green sectional sofa follows the room’s curvature, reinforcing the intimacy of the space while its low profile maximizes the views.

At the heart of the home lies a sunken living room, facing the circular fireplace. large windows wraps 180 degrees, erasing the boundary between the interior and the ocean.

The kitchen and dining areas serve as a showcase vertical wood slats providing warmth that offsets the stone floor.

The Clery House honors its lineage while accommodating modern living, reinforcing timeless design.

Previous
Previous

Palermo House

Next
Next

Harding House