Oxbridge Residence

Designed for a growing family with a affinity for entertaining, this modern dwelling embodies indoor-outdoor living. The design revolves around seamless integration, aiming to create a timeless and attractive home for the clients. Inside, the residence conveys a sense of openness and brightness, highlighted by a grand entrance leading into a spacious great room adorned with double-height ceilings. The architectural language strikes a harmonious balance between modern aesthetics and a welcoming, intimate atmosphere.

Model:

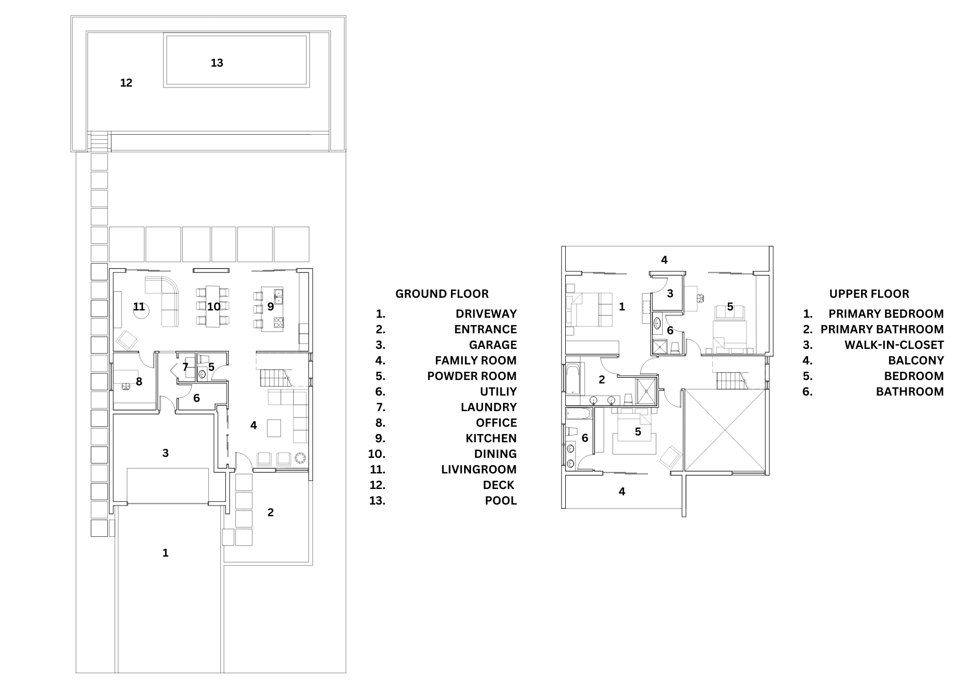
Plan:

Previous
Previous

Pilot Residence

Next
Next

Dodds Residence