Banham House

Malibu, California, Jan. 2025

“The project shows that even video games can recognize significant [real life] architecture that shaped designs from the past, present and future ”
- Christopher Breedy

The Banham House, is a mid-century modern home inspired by a secluded home found in the video game Grand Theft Auto 5. Located conceptually in a setting reminiscent of Malibu, the home inspired by the Case Study #16 house bridges the gap between digital design and physical architecture.

“It’s refreshing the way mid century designs make playful colours look clean and professional in contrast to most builds today” - Christopher Breedy

The front of the home features a minimalist, flat-roof with white screens to ensure privacy from the street.

The tropical landscaping along with the yellow brick walls direct the attention to the carport containing classic cars such as a silver Mercedes-Benz 300SL and a yellow Porsche 911.

The entrance is intentionally hidden and isolated, creating a sense of curiosity as you approach the front door.

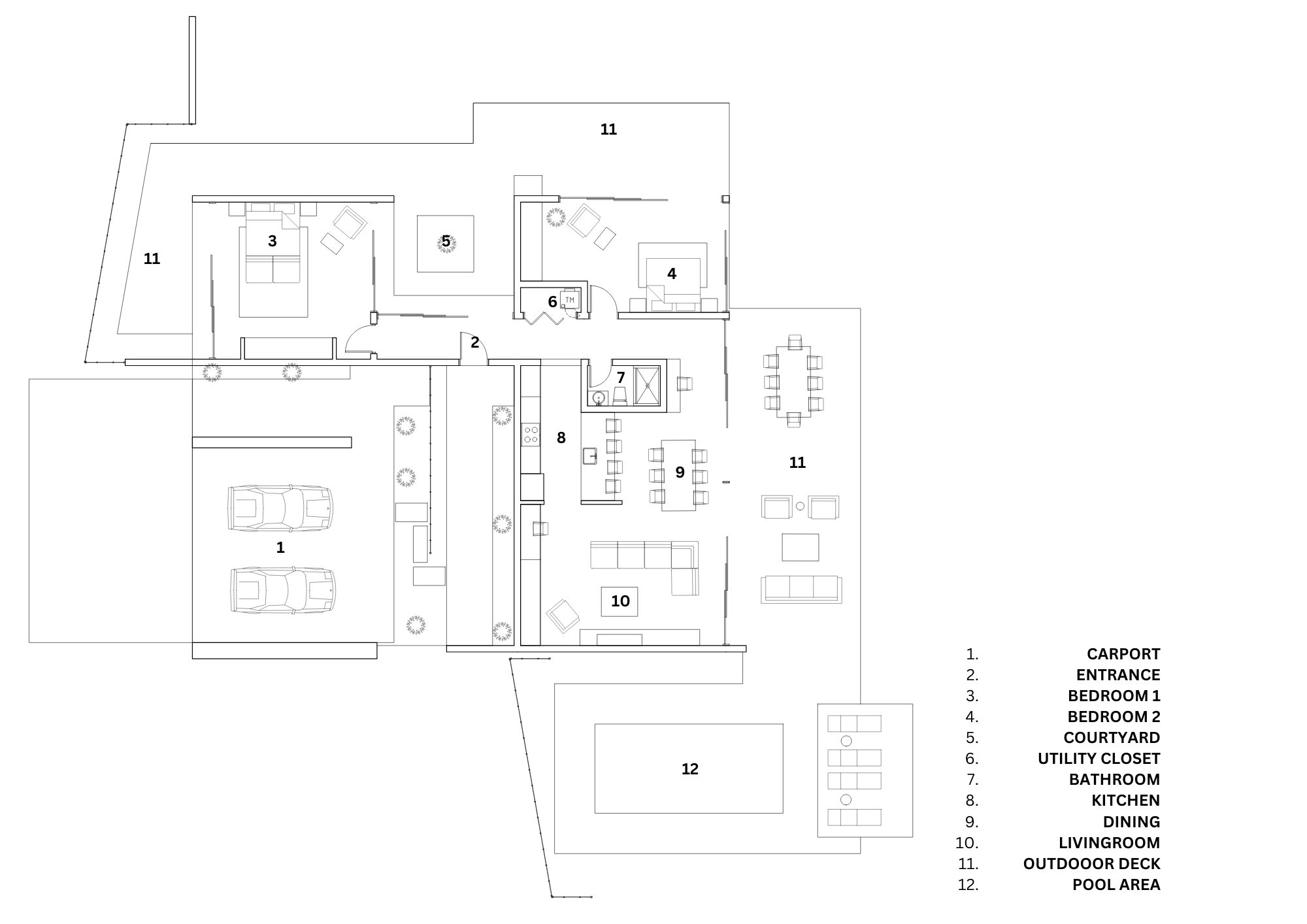
Inside, the home utilizes a compact two-bedroom, one-bathroom floor plan where every square inch is functional. The design is centered around an open courtyard that floods the interior with natural light and provides a seamless connection to nature.

The open-concept living space features rich wood paneling on the ceiling, a modern fireplace and iconic mid-century modern furniture. Large floor-to-ceiling glass panels blur the line between the indoors and the lush surroundings.

The galley kitchen continues the mid-century aesthetic with natural wood cabinetry, green marble countertops, and a matching green tiled backsplash. It also includes an area with bar seating and a sink overlooking the dining table and the landscape beyond.

The rear of the property is a place of relaxation and uninterrupted views of the coast.

The two private bedrooms are situated on opposite sides of the courtyard. The east bedroom is designed for tranquility and privacy, while the west bedroom is oriented to engage with the landscape and offer breathtaking ocean views.

The back deck also serves as a direct extension of the living room, featuring a swimming pool with integrated steps and a spacious lounging area.

The Banham House emphasizes simplicity and intentionality, showcasing how real life architectural projects can be introduced to different demographics through unconventional mediums.

Previous
Previous

Croft Cabin

Next
Next

Blank Residence